















project: verbouwen en uitbreiden woning
ligging: Kessel-Lo
oplevering: 2019
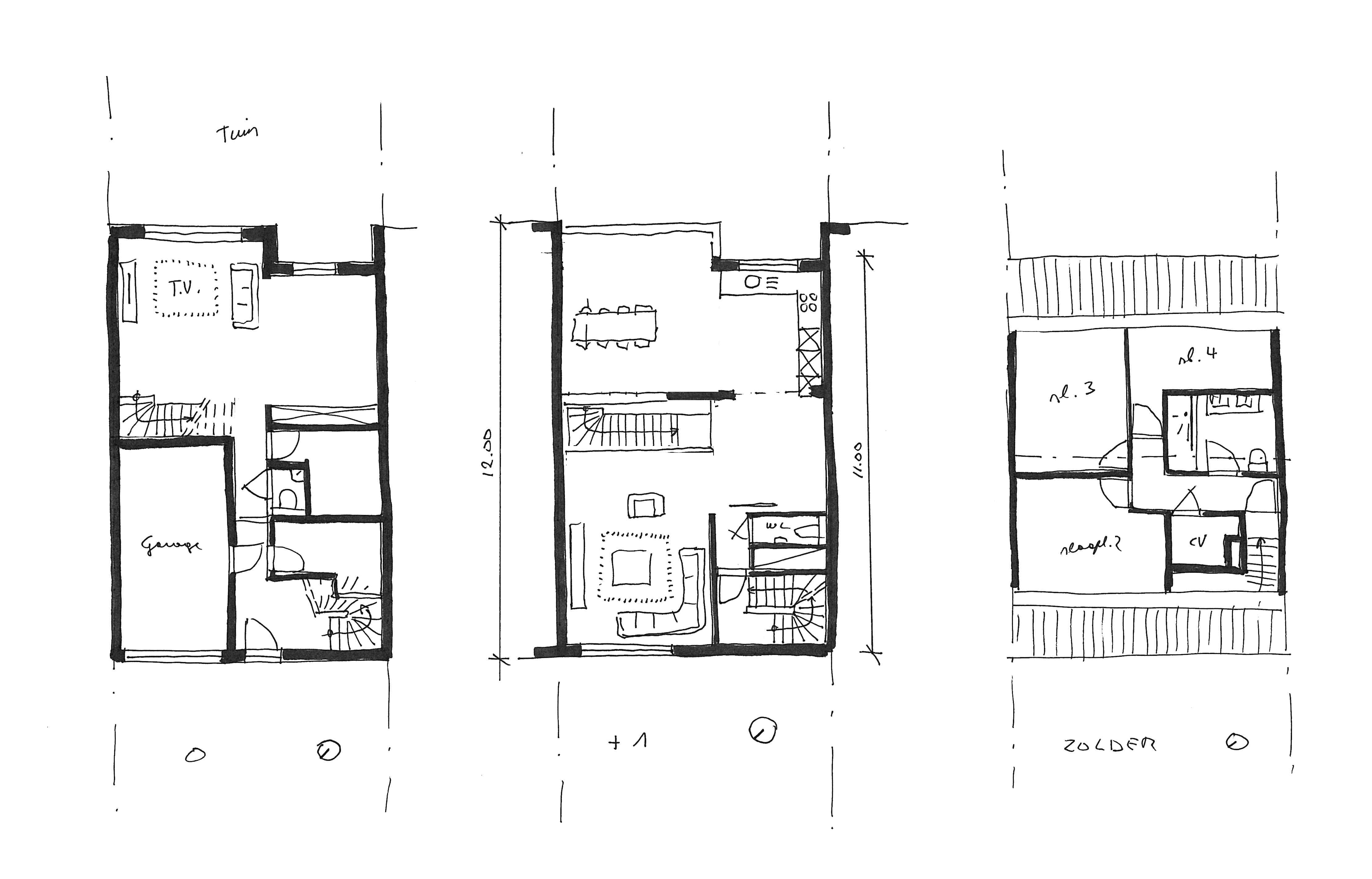
In een bel-étage leef je op de verdieping en is de tuin daardoor veraf. Heel vervelend en hier was dat niet anders. Door het schuiven met functies en het openbreken van de verdieping naar het gelijkvloerse niveau, is de tuin nu dichtbij. Mooi meegenomen is dat de leefruimte daardoor dubbel zo groot is.
Een extra trap, dwars en midden in het grondplan, legt een directe link van de leefverdieping naar het tuinniveau. De voormalige gelijkvloerse slaapkamers verhuizen naar boven. Hiervoor moet het zadeldak uitbreiden. De vrijgekomen ruimte beneden vormt een extra zithoek zodat er een “duplex-living” ontstaat. De eetkamer en keuken zijn fysiek gescheiden van de zithoek. Maar door te werken met een binnenraam ontstaan interessante doorzichten en blijft het ruimtegevoel behouden.

