






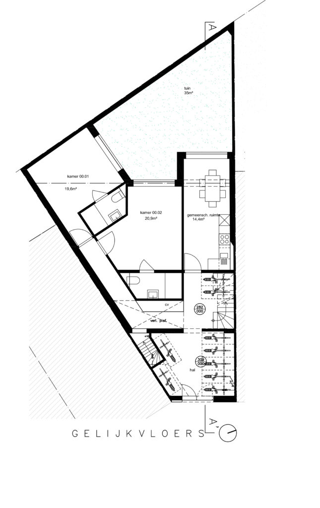
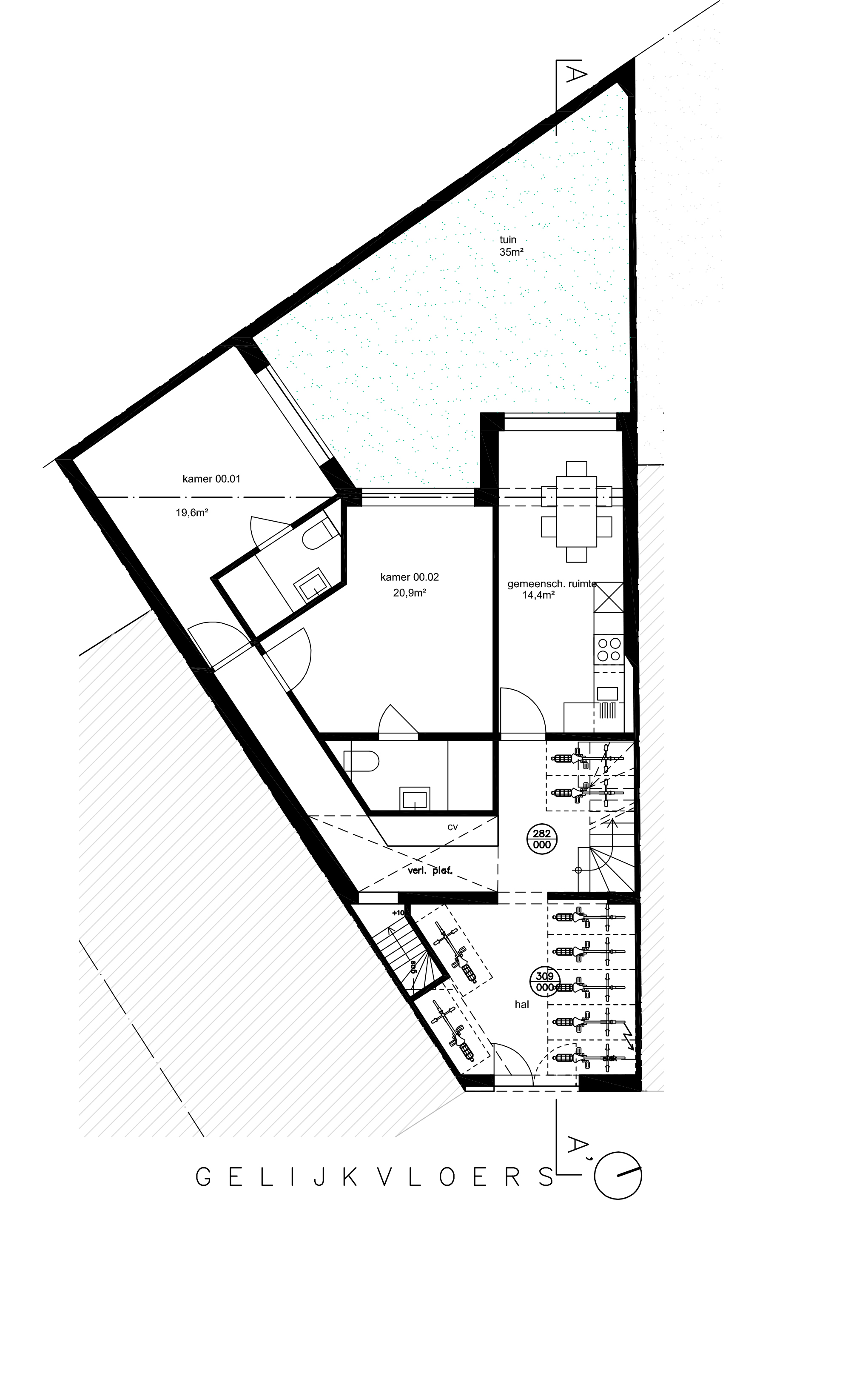
project: verbouwen studentenwoning en studio’s
ligging: Van Het Sestichstraat, Leuven
oplevering: 2019
De smalle voorgevel verbergt een heel ruim en licht gebouw dat zes studentenkamers met eigen badkamer omvat en twee volwaardige studio’s. Het driehoekig perceel, met een verouderd studentenpand, had een totale renovatie nodig.

