Een woning in half open bebouwing wordt grondig verbouwd en uitgebreid met een ruime leefkeuken en een slaapkamer op de verdieping.
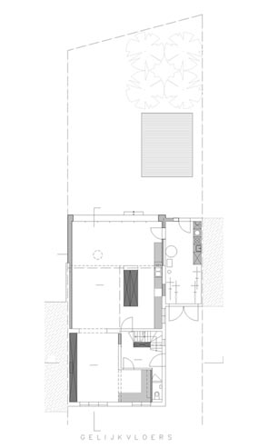
Achteraan wordt een nieuwbouw als een zwarte ‘koker’ tegen de woning geschoven die de hoofdbouw met de garage verbindt.
Vanuit de woning kadreert het ritmisch ingedeelde raamgeheel het lager gelegen groen.
Door het maken van doorgangen en slopen van binnenmuren, ontstaat er een open plan waarin een centraal meubel in afrormosia de ruimte organiseert: keuken aan de ene, zithoek aan de andere kant.
De vloer in grijze polyurethaan verbindt de verschillende ruimten en schept ruimte door zijn egale, naadloze uitvoering en lichte kleur. Het warme centraal geplaatste houten meubel zorgt voor een warme toets in het interieur.















