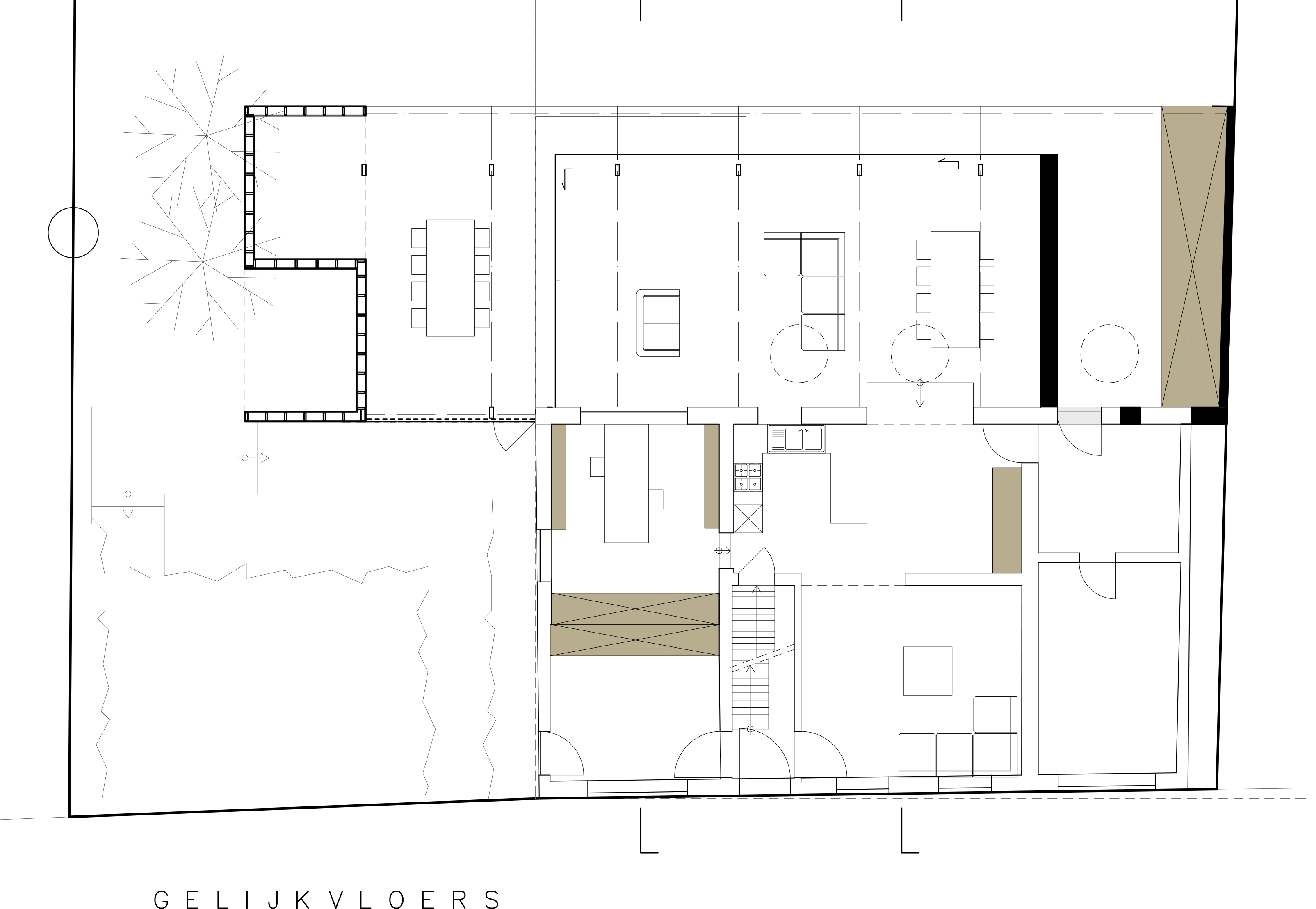
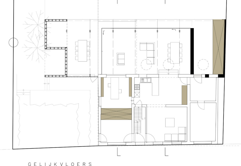
In de loop der jaren ingesloten door bebouwing, staat deze oude woning ingebed in de zuidflank van de Molenbeekvalei. Een nieuwe brede uitbouw schakelt de woning met het lager gelegen groen. Het dak past zich met een knik gedwee aan aan de historische hoofdbouw. De volledig beglaasde achtergevel is naar binnen geschoven zodat een slagschaduw de binnenvallende zuiderzon tempert.
Het vakantiegevoel is hier nooit ver weg.
De liefde voor hout en de handigheid van de bouwheer uiten zich onder meer in de houten draagstructuur, in het gedetailleerde plafond tot zelfs in de handgrepen van de maatkasten.













