











project: verbouwen en uitbreiden woning
ligging: Wilsele
oplevering: 2016
De woning werd al eens verbouwd en uitgebreid. Maar de vele niveauverschillen, muurtjes en hoekjes zorgden wel voor een zekere geborgenheid, het interieur was echter niet betrokken op de tuin, de ruimte was moeilijk in te richten en er sijpelde water binnen langs het dak.
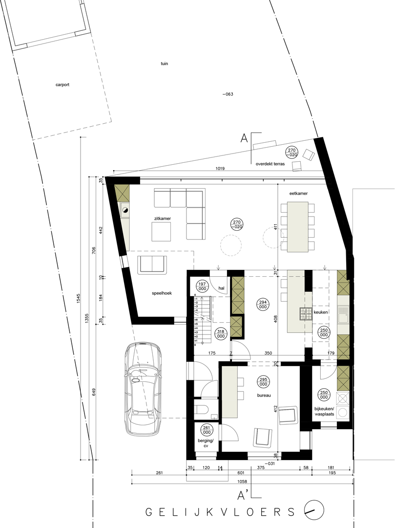
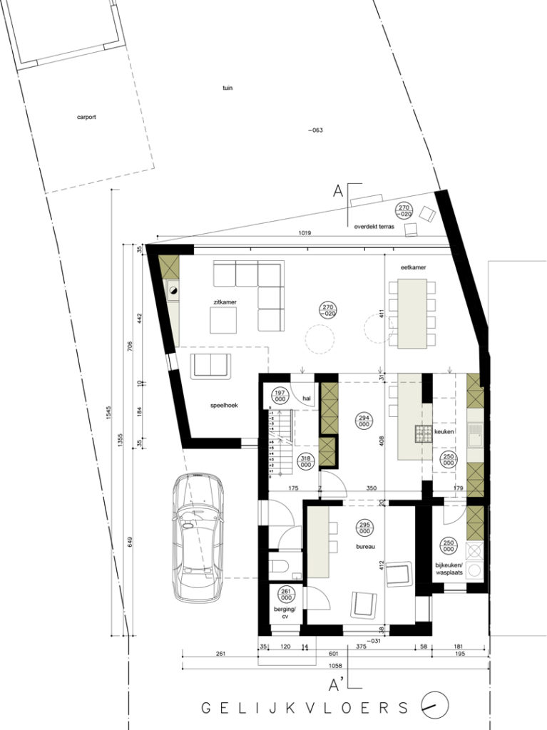
De conclusie was gemaakt: de recente aanbouw slopen en een nieuw uniform volume ontwerpen dat de tuin mooi ontsluit, functioneel en hedendaags opgevat is en waarin volop ‘geleefd’ mag worden. Het resultaat is een langgerekt volume dat rondom de woning krult als een slang. De kop start boven de voordeur in de zijgevel en vormt een overdekte inkom/carport. De huid als verticaal geplaatste latten plooit om de achtergevel en opent zich naar de tuin. Het schuifraam is naar binnen geduwd en zorgt voor een overdekt terras. De slang krult verder tussen 2 wachtgevels en eindigt in een berging aan de straatkant. Het dak is opengemaakt met een lichtstraat en twee ronde koepels.

