











project: verbouwen bel-étagewoning
ligging: Kessel-Lo
oplevering: 2016
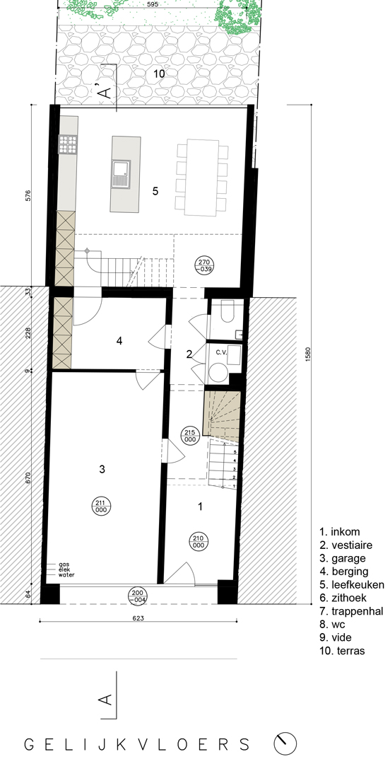
Wonen op de verdieping met inkom, garage en berging op de begane grond, is eigen aan een bel-étagewoning. Alleen jammer dat bij deze configuratie de tuin niet aansluit bij de leefruimten. Dat vonden de bewoners ook. Bovendien was de keuken op de verdieping veel te klein en zijn de uitbreidingsmogelijkheden op de verdieping conform de stedenbouwkundige voorschriften beperkt.
Op de gelijkvloerse verdieping achter de garage en bergingen is een grote leefkeuken ontworpen die aansluit op de tuin. De woonkamer op de verdieping blijft behouden maar is uitgebreid op de plaats van de weggenomen keuken. Een beperkte uitbouw op dit verdiep omvat een vide met een stalen trap naar de leefkeuken. De vide koppelt de 2 niveaus en maakt er één grote ruimte van. Dankzij de witte geperforeerde trappartij dringt het daglicht ongehinderd tot in het midden van de woning. De mooie diepe tuin is plots veel bereikbaarder. Het groen is van overal in de woning zichtbaar. Via de doorzichten, passerel en de vide gaat alles ruimtelijk werken en wordt de omgeving intens op het interieur betrokken.

