












project: verbouwen vrijstaande woning
ligging: Kessel-Lo
oplevering: 2021
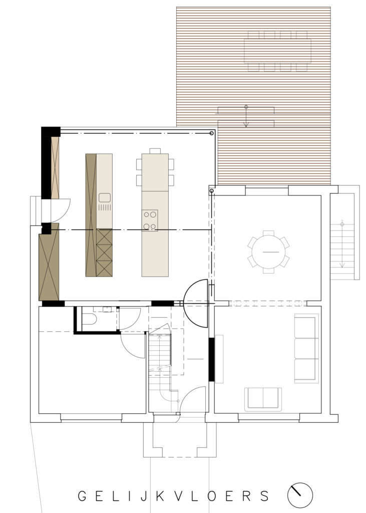
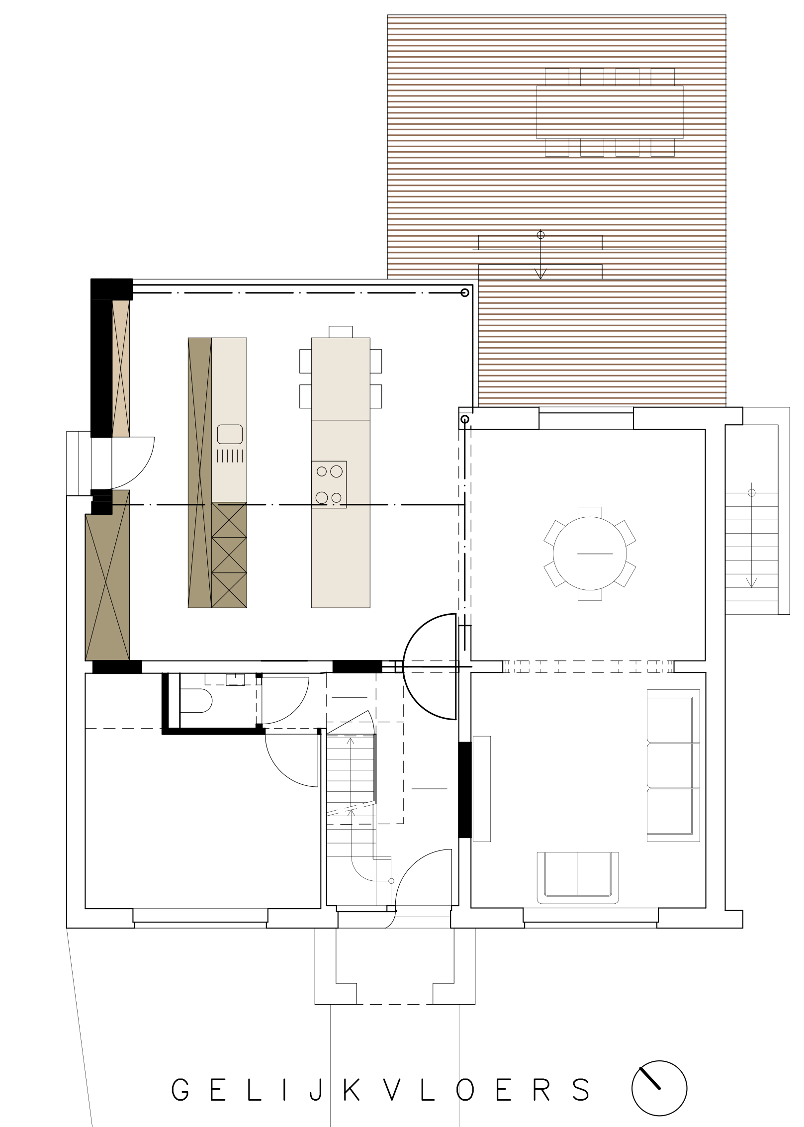
Charme had het wel, het rode huis van na de 2e wereldoorlog: de rondboog in het salon, het binnenraam onder de trap, de parketvloer met de mooie details. Maar de indeling was traditioneel, met de keuken zo ver mogelijk van de leefruimte, de toegang naar de tuin niet evident en het ruimtegevoel ontbrak.
De wc en keldertrap zijn weggebroken om een centrale as te bekomen in het verlengde van de voordeur. Een kleine maar brede en volledig beglaasde uitbouw brengt licht, groen en ruimte in de nieuwe leefkeuken. Heel wat binnenmuren gaan er aan zodat keuken en ‘salon’ één vormen. De grote L-vormige woonruimte verenigt oud en nieuw, donker en licht, stemmig hout en gewaagd kleurrijk met het groen van de tuin als verbindend element.

