Woning DB

verbouwen en uitbreiden rijwoning

in Kumtich

project: verbouwen en uitbreiden rijwoning
ligging: Kumtich
oplevering: 2015

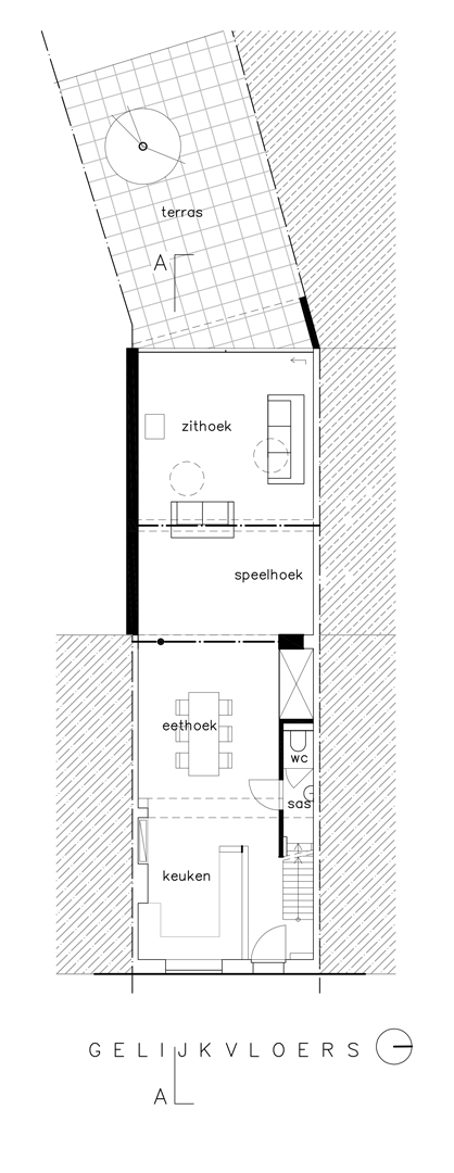
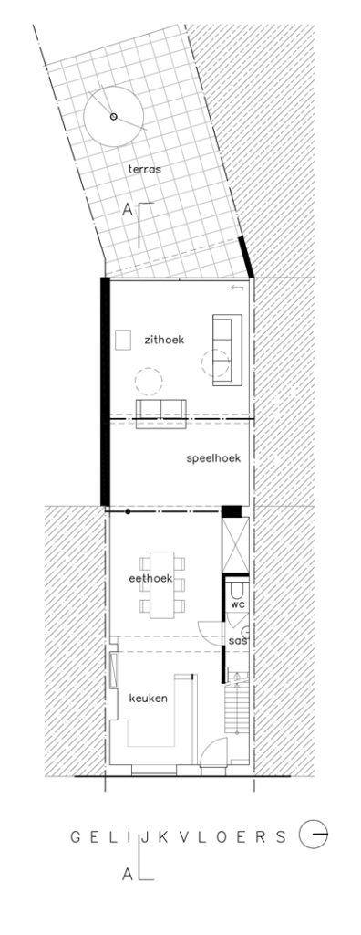
Verbouwen en uitbreiden van een rijwoning. De aanbouwen werden weggesneden. Een nieuwe uitbouw over 2 verdiepingen brengt ruimte en licht in de woning.

Bergingen, technieken, wc en toegang naar de kelder zijn weggewerkt in een kastenwand in grijze olm. Een gepolierde betonvloer verbindt interieur met exterieur. Het schuifraam is naar binnen geplaatst en creĆ«ert zo een overdekte ’tussenruimte’, een overgang tussen leefruimte en tuin.