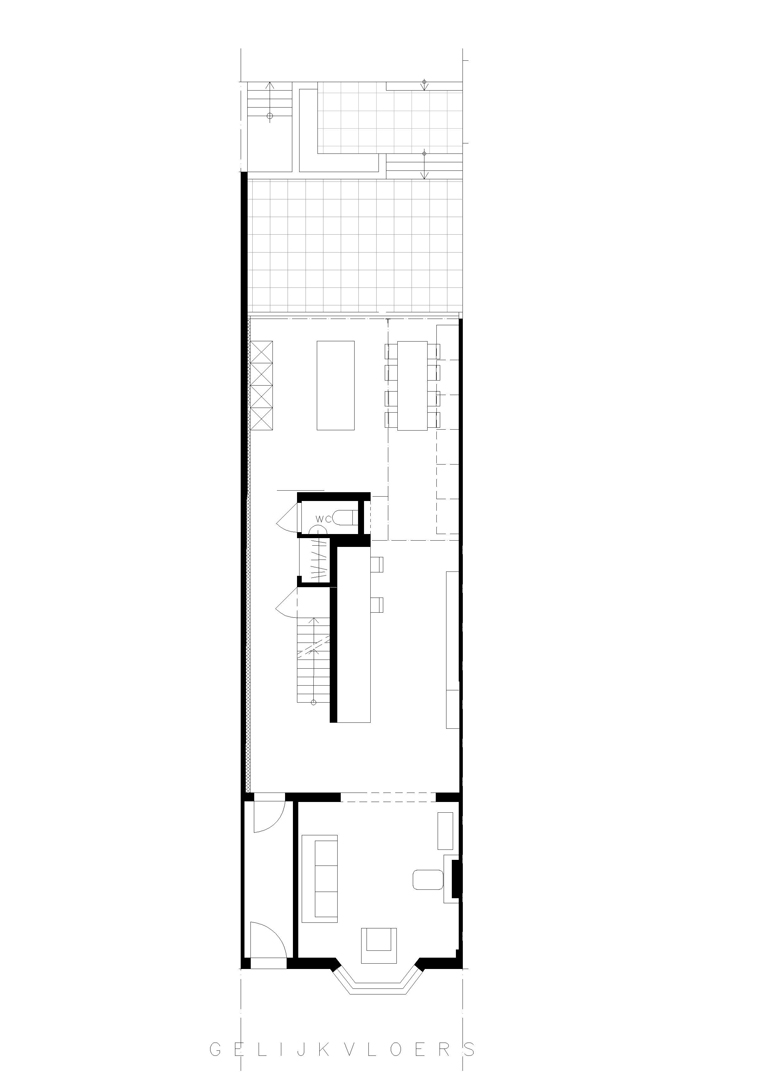
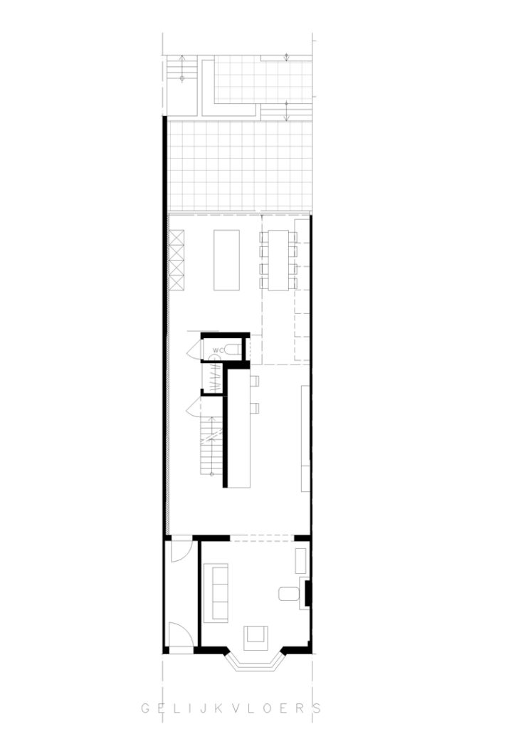
Deze karaktervolle rijwoning uit 1926 werd grondig maar respectvol aangepakt, zonder uit te breiden.
Een lichtgrijze cementgebonden gietvloer weerkaatst het noorderlicht dat via de lichtstraat en de opengewerkte achtergevel tot diep in de woning binnendringt.
De problematische verbinding met de lager gelegen tuin werd hertekend: twee terrassen op verschillende niveaus maken op een natuurlijke wijze de overgang naar het groen.















